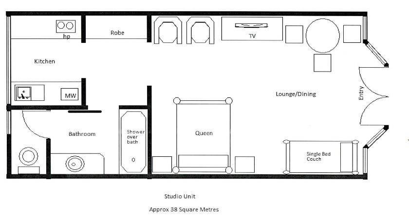
150 m² Motel ∙ 3 bedrooms ∙ 127 guests | Hotel in Devonport with Pool

Hotel in Devonport
Great care is taken to ensure guests experience comfort through top-notch services and amenities.Stay connected with your associates, as complimentary Wi-Fi is available during your entire visit. The motel offers taxi and shuttle amenities for your ease in navigating around Devonport.When arriving by car, you'll be grateful for the on-site complimentary parking at motel. The motel offers reception amenities including express check-in or check-out and luggage storage to ensure a comfortable stay for guests. Should you require it, the tours can even assist you in booking tickets and securing reservations for the finest shows and events in the vicinity. Whether it's an extended stay or simply needing fresh attire, laundromat, dry cleaning service and laundry service provided by motel ensures your cherished travel garments stay spotless and accessible.Your stay will be comfortable with the presence of room service and daily housekeeping as an in-room amenity for your relaxation and enjoyment. To ensure the well-being and convenience of all visitors, smoking is strictly prohibited throughout the entire motel. Smoking is permitted solely in the specified smoking zones allocated by motel. Start your day stress-free at Barclay Motor Inn as breakfast is made available for you on the premises. Visitors staying at Barclay Motor Inn have the option to receive groceries in their room for meal preparation, courtesy of the unique service provided by the motel. Visitors wishing to create their personal culinary delights will appreciate the on-site BBQ facilities provided at this establishment.Throughout the day, engage in the entertaining activities available at Barclay Motor Inn.Unwind by the pool at motel and cherish a leisurely moment.
Policy on additional beds for children
Children 0-16 year(s) old You must require an extra bed in case the standard beds cannot accommodate children
Guests 17 years and older are considered adults. There must be an extra bed for children in case the standard beds cannot accommodate them.